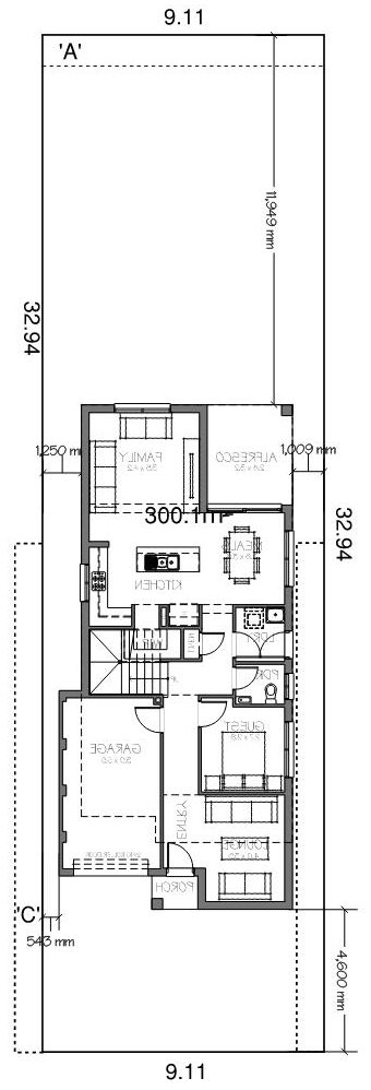
Welcome to the Eva 21.4SQ, a beautifully designed 4-bedroom, 3-bathroom residence on Lot 513515 Twelfth Avenue, Austral. With a modern floorplan spread over 21.4SQ on 300m², this home offers both style and practicality, making it ideal for growing families.
Package Inclusions
- Traditional Facade Included
- Upgraded Site Cost Allowance
- Ground Floor Ceiling Height to 2.6m
- Ducted Air Conditioning
- 600mm Westinghouse Appliances
- Bathroom Wall Tiling to 1.2m High
- 20mm Kitchen Benchtop Upgrade Allowance
- Free Standing Bathtub
- Upgraded Downlights Package
- Security Alarm System
- Panel Lift Garage Door
- Vertical Blinds
- Flyscreens to all Opening Windows
- Carpets to Bedrooms
- Tiling Living Areas
- Driveway
- Upgraded BASIX Allowance Included
- Builder’s agreed maintenance period
– 90 days from practical completion - NBN Pre-Wire (Builder’s Provision)
- Custom design options available
- Development application fees
Lifestyle Benefits
7 minutes to Leppington Station
Easy access to M5 & M7 motorways
Surrounded by new schools, parks & shopping precincts
Only 15 minutes from the future Western Sydney Airport
Registration Expected Q2 2026
This is your opportunity to secure a brand-new, high-quality home in one of Sydney’s fastest-growing regions.
Enquire today: 0458 50 60 70 | (02) 9608 3333
Visit our display at Leppington Living Display Village, 5 Twilight Street, Leppington



