Affordable 3-Bedroom Home in Austral – Perfect First Home or Investment
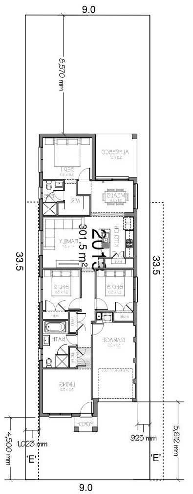
Introducing the Laila 15.4SQ, a stylish 3-bedroom, 2-bathroom home with smart design on a 300m² block at Lot 2013, Kelly Street, Austral. With quality finishes and practical living, this home offers exceptional value for first-home buyers, young families, or investors.
PACKAGE INCLUSIONS
- Classic Facade Included
- Upgraded Site Cost Allowance
- Ground Floor Ceiling Height to 2.6m
- Ducted Air Conditioning
- 600mm Westinghouse Appliances
- Bathroom Wall Tiling to 1.2m High
- 20mm Kitchen Benchtop Upgrade Allowance
- Free Standing Bathtub
- Upgraded Downlights Package
- Security Alarm System
- Panel Lift Garage Door
- Vertical Blinds
- Flyscreens to all Opening Windows
- Carpets to Bedrooms
- Tiling Living Areas
- Driveway
- Upgraded BASIX Allowance Included
- Builder’s agreed maintenance period
– 90 days from practical completion - NBN Pre-Wire (Builder’s Provision)
- Custom design options available*
- Development application fees
Location Highlights
Just 7 minutes to Leppington Station
Quick access to M5 & M7 motorways
Surrounded by quality schools & shopping options
Only 15 minutes to the new Western Sydney Airport
Registration Expected Q4 2026
Enquire now: 0468 397 931 | (02) 9608 3333
Visit: Leppington Living Display Village, 5 Twilight Street, Leppington


