Brand-New 4-Bedroom Home with 22.5SQ Floorplan
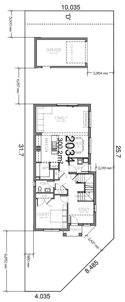
Discover the perfect balance of comfort and sophistication with the Paige 22.5SQ, a thoughtfully designed 4-bedroom, 2.5-bathroom home on a 300m² block at Lot 2034, Kelly Street, Austral. With premium inclusions and a spacious layout, this home is ideal for families looking to settle in one of Sydney’s fastest-growing suburbs.
PACKAGE INCLUSIONS
- Classic Facade Included Garage 22.5SQ
- Upgraded Site Cost Allowance
- Ground Floor Ceiling Height to 2.6m
- Ducted Air Conditioning
- 600mm Westinghouse Appliances
- Bathroom Wall Tiling to 1.2m High
- 20mm Kitchen Benchtop Upgrade Allowance
- Free Standing Bathtub
- Upgraded Downlights Package
- Security Alarm System
- Panel Lift Garage Door
- Vertical Blinds
- Flyscreens to all Opening Windows
- Carpets to Bedrooms
- Tiling Living Areas
- Driveway
- Upgraded BASIX Allowance Included
- Builder’s agreed maintenance period
– 90 days from practical completion - NBN Pre-Wire (Builder’s Provision)
- Custom design options available*
- Development application fees
Location Highlights
7 minutes to Leppington Station
Easy access to M5 & M7 motorways
Surrounded by new schools, shops & amenities
Only 15 minutes from the future Western Sydney Airport
Registration Expected Q4 2026
Contact us today: 0458 50 60 70 | (02) 9608 3333
Visit: Leppington Living Display Village, 5 Twilight Street, Leppington



