Brand New Custom Home with Premium Inclusions in Prime Leppington Location
This exceptional House & Land Package at Lot 153 Cornish Street, Leppington presents the perfect opportunity to secure a brand-new, custom-designed home built by CSB Homes, a trusted builder with over 30 years of experience.
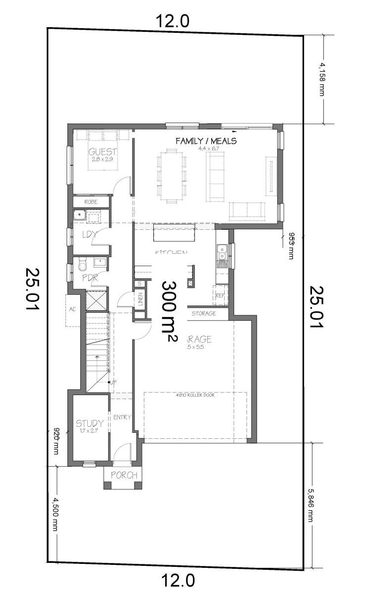
The Custom Lara 23 has been thoughtfully designed to deliver space, functionality and modern comfort, making it ideal for growing families, professionals or savvy investors. Featuring multiple living zones and a seamless open-plan layout, this home balances everyday practicality with stylish finishes throughout.
The heart of the home is the spacious kitchen, meals and family area, designed for effortless entertaining and family living. Generously sized bedrooms, modern bathrooms and quality fixtures complete a well-considered floorplan that maximises natural light and flow.
Package Inclusions:
*Contemporary façade included
*Upgraded site cost allowance
*Ground floor ceiling height to 2.6m
*Ducted air conditioning
*600mm Westinghouse appliances
*20mm kitchen benchtops
*Bathroom wall tiling to 1.2m
*Free-standing bathtub
*Upgraded downlights package
*Security alarm system
*Panel lift garage door
*Vertical blinds & flyscreens to opening windows
*Carpet to bedrooms & tiled living areas
*Driveway included
*NBN pre-wire (builder’s provision)
*Upgraded BASIX allowance included
*Builder’s agreed maintenance period (90 days from practical completion)
*Custom design options available
Positioned in the highly sought-after suburb of Leppington, this home offers excellent access to local schools, shopping centres, public transport, major motorways and the future Western Sydney Airport — making it a strong choice for both lifestyle and long-term growth.
Land registration expected Q4 2026
This is a rare opportunity to secure a quality, custom home with premium inclusions in one of South-West Sydney’s fastest-growing communities.
Visit Our Display Homes
Leppington Living Display Village
5 Twilight Street, Leppington NSW 2179
HomeWorld Oran Park Display Village
12 Christine Street, Oran Park NSW 2570
Call: 0468 397 931 | (02) 9608 3333



